REHHECKE

Ratingen

Zurück

NUR EINEN SPRUNG ENTFERNT. DIE RATINGER REHHECKE.

50 Hektar voller Chancen.

Die besten Perspektiven finden sich ja oft vor der Haustür.

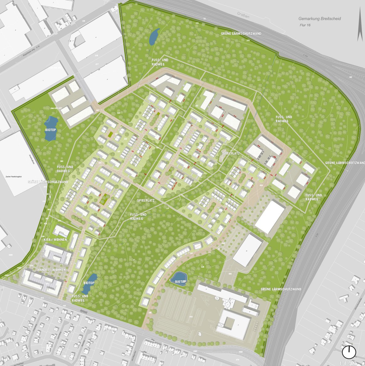
Wer wie wir mit offenen Augen in der Region unterwegs ist, kennt nicht nur den immensen Bedarf an Wohnungen – der entdeckt auch gleich die dazu passenden Lösungen. Hier an der Rehhecke in Ratingen-Lintorf liegt ein Areal, das wir für Wohn- und Gewerbeflächen entwickeln werden. Zirka 50 Hektar warten auf unsere Ideen – an der Schnittstelle zwischen Düsseldorf und Ruhrgebiet, perfekt angebunden. 20 Hektar Wald bleiben erhalten und zirka sechs Hektar Gewerbe bilden bereits heute den Bestand.

Ein gemischt genutztes Quartier.

Die Quartiersentwicklung REHHECKE zählt für DIE WOHNKOMPANIE NRW zu den großen Projekten. Wir befinden uns derzeit  in einer sehr frühen Phase der Projektentwicklung. Das Gesamtgelände ist bisher als klassisches Gewerbegebiet ausgewiesen. Unsere Grundidee ist, das Areal auch für bezahlbaren Wohnraum zu nutzen. Ziel ist ein Mix aus Geschosswohnungsbau, Einzelhäusern, Doppelhäusern und Reihenhäusern, der entsprechend des Ratinger Bedarfs für eine breite Nachfragestruktur entwickelt wird. So entstehen im Geschosswohnungsbau auch Mietwohnungen, sowohl im frei finanzierten als auch geförderten Segment.

Insgesamt sollen etwa 1.300 Wohneinheiten realisiert werden.

Über 85.000 Quadratmeter BGF (Brutto-Grundfläche) werden zusätzlich für die gewerbliche Nutzung bereitstehen. Die Mischung aus Wohnen, Gewerbe und Handel für den täglichen Bedarf schafft hier einen ganz neuen Stadtteil – und eine Kita planen wir natürlich auch gleich ein.

Wir verbinden Wohnen, Arbeiten und Grün.

Vom Gesamtumfang des Areals von 50 Hektar bleiben allein 20 Hektar Wald unberührt. Unsere Ambition ist, dass dieser schützenwerte Waldbestand und die bestehenden Grünstrukturen das Gebiet weiter prägen und erhalten bleiben sollen. Spielplätze, Neuanpflanzungen und die Definition von Fuß- und Radwegen gehören ebenfalls zu den Elementen der Quartiersentwicklung.

Sorgfalt und solide Planung sind uns wichtig.

Bis es so weit ist, muss das Projekt das Bauleitplanverfahren durchlaufen, in dem die Planungsidee durch Bürgerbeteiligung, Beteiligung der Politik, der Behörden und Träger öffentlicher Belange geschärft und mit Fachgutachten, z.B. in Bezug auf Verkehr und Mobilität, Lärmschutz, Artenschutz und Umweltbelange, untermauert wird.

Ein Beitrag zur Verkehrsentlastung.

Hinsichtlich der akuten Verkehrsprobleme in Ratingen-Lintorf kann das Projekt zur Entlastung beitragen. Auf Basis einer Verkehrsuntersuchung wollen wir für neuralgische Strecken und Knotenpunkte gemeinsam mit den Behörden sinnvolle Lösungen entwickeln. Für die Gesamtsituation erwarten wir dadurch eine deutliche Verbesserung.

Sie möchten mehr erfahren?

Die Informationen zum Projekt REHHECKE bilden erste Ideen für eine mögliche Entwicklung des Areals ab. Im weiteren Verlauf der Projektentwicklung werden diese Ideen mit den Behörden unter Einbindung der Bürger Ratingens diskutiert und weiterentwickelt.

Haben Sie Fragen? Gerne beantworten wir diese unter Tel.:
+49 421 41007-113.

REHHECKE, Ratingen
Daten und Fakten

Nutzungsmix: Geschosswohnungsbau, Einzelhäuser, Doppelhäuser, Reihenhäuser

ca. 1.300 Wohneinheiten,
ca. 85.500 m² BGF Gewerbe- und Handelsfläche

Projektart: Neubau als Quartiersentwicklung
Grundstück: ca. 50 Hektar
Projektstart: 2018
Beginn Erschließung: noch offen
Fertigstellung: noch offen

Zurück

Ihr Inhaltselement ist leer.

REHHECKE · Ratingen
Die Wohnkompanie © 2026 · Wir entwickeln Lebensräume
Wohnkompanie - Logo
DIE WOHNKOMPANIE verwendet Cookies (auch von Drittanbietern) um die einwandfreie Darstellung der Webseite zu garantieren und mehr über das Verhalten der Webseitenbesucher zu erfahren. Die Cookies helfen uns dabei, unsere Webseite besser auf die Bedürfnisse anzupassen. Zusätzlich können wir Ihnen individuelle Angebote präsentieren (auch auf Drittwebseiten). Mit dem Klick auf den Button "Zustimmen" erklären Sie sich mit der Verwendung von Cookies einverstanden. Mehr zu den Cookies erfahren: Datenschutz und Impressum.